045-721-6566
メールのお問合せ
ホーム
ご挨拶
事務所概要
設計実績
お客様の声
無料相談
解説総目次
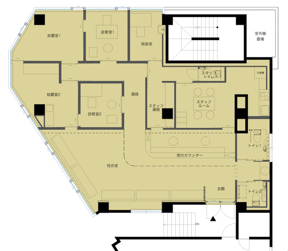
200903-takatuMC-0plan
お探しの内容を入力して検索
サイトメニュー
よくある相談問合せ
家づくりのしくみ
費用・設計料・保証
土地探し・旗竿地
注文住宅
二世帯住宅
アパート・マンション
医院クリニック診療所
和風住宅・和風店舗
事務所・工場・倉庫
飲食店舗・物販店舗
寺院・神社・墓納骨堂
公共施設・学校・体育館・プール
アパート併用住宅・医院兼用住宅
在宅勤務の書斎・テレワークルーム
地下建築物
改修リフォーム・大規模修繕
用途変更・許可申請・定期調査報告
構造・耐震・免震
防水・排水・除湿
防音・遮音・吸音・音響
断熱・遮熱・保温・蓄熱
キッチン・トイレ・洗面・水廻り設備
空調エアコン・換気設備
照明計画設計と器具選定
太陽光発電パネル・エネファーム・蓄熱
アレルギー対策
建築材料の保存再生利用・解体工事
建築物の特殊な設計技術
新聞雑誌掲載・TV出演
展示相談会
遠距離設計業務
建築家の日記
建築用語の説明集
無料相談・お問合せ
有料相談
ご挨拶
事務所概要
設計実績
お客様の声
全解説記事一覧
歯科クリニック開業サポート
人気記事
和風
住宅店舗建築外装内装の間取り設計図
医院
クリニック内装
工事の坪単価
費用
医院
クリニック建築
工事の坪単価
費用
医院クリニック
内装
の
設計費
用料金
患者様が
眩しくない
診察室
照明
医院クリニック
内装費を安く
する
ガレージ車庫
RC造・住宅木造で混構造設計
高級
和風
寿司
飲食店舗
内装設計デザイン
外観内装も
日本的和風
デザイン店舗建替
住宅ローン
でアパート併用住宅を建てる
アパートマンション
収益物件の費用
を安くする
家を安く建てたい
木造2階建て賃貸アパートの
遠距離
施主オーナーと設計工事の進め方
設計事務所が伝えたいこと
建築家が設計した家が
ハウスメーカーより安い
理由
コップの値段と家住宅
建築の費用
の違い
家を建てる
相談先
を誰にする?
建築家の敷居
は高い?
家は
設計施工一括
と
設計施工分離
どちらが良い?
家を安く
建てる方法
メール相談
電話で相談